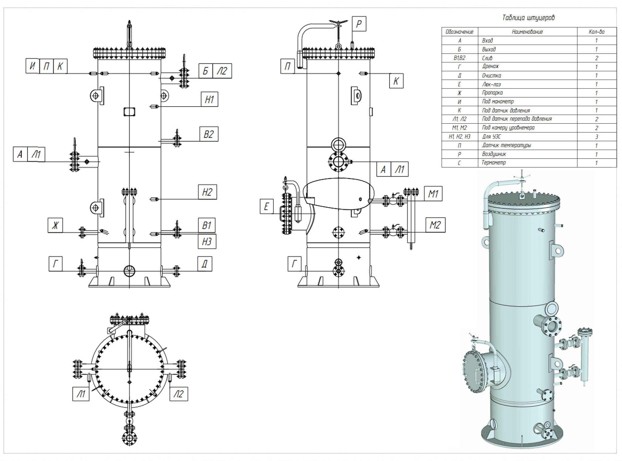
Сепараторы газовые вихревые (типа СГВ, СГВ-7) предназначены для очистки газового потока и потока сжатого воздуха от механических примесей, капельной жидкости, находящейся во взвешенном состоянии и других не растворенных примесей.
Конструкция газового сепаратора вихревого типа СЦВ, СГВ-7 состоит из вертикального корпуса, двух эллиптических днищ, патрубков входа/выхода газа, сливного патрубка для жидкости, внутренних элементов.
Внутренние элементы сепаратора предназначены для осуществления процесса отделения взвешенной влаги и механических примесей от газового потока.
При этом внутренние элементы сепаратора не содержат вращающихся частей, фильтров или других динамических или сменных элементов, требующих периодических проверок, обслуживания, ремонта или замены. Это делает конструкцию сепаратора СГВ, СГВ-7 более надежной, менее затратной в обслуживании в любых системах подготовки сжатого воздуха, а также в условиях газовых промыслов.
Схема условного обозначения:
СГВ-7-325/63-2, где:
-
СГВ-7 – сепаратор газовый вихревой, модификация 7;
-
325 - диаметр сепаратора, мм;
-
63 – расчетное давление (атм.);
-
2 - Материальное исполнение (1 - не ниже -40С; 2 - от -40 до -60С)
Вихревые сепараторы газа СГВ, СГВ-7 обладают:
- высокой эффективностью очистки;
- степенью сепарации до 99,99%;
- устойчивой работой в разных режимах;
- низкой металлоемкостью;
- небольшими габаритами и весом;
- заменяемостью внутренних сепарационных элементов.
Производственная корпорация ООО «Химмаш» производит центробежные вихревые газовые сепараторы различных габаритных размеров и широкого спектра давлений (диаметры от 89 мм до 2000 мм, рабочее давление от 0,01 МПа до 40 МПа).

